物件概要
| 種別 | 中古戸建て | 価格 | 11,699万円(税込) |
|---|---|---|---|
| 土地面積 | 481m² (145.5坪) | 建物面積 | 153.31m² (46.37坪) |
| 築年月 | 1994年07月 | 建築確認番号 | - |
| 現況 | 空家 | 物件番号 | 1665915 |
| 交通 | JR横須賀線「大船」駅徒歩15分 湘南モノレール「富士見町」駅徒歩27分 |
||
| 所在地 | 鎌倉市玉縄4丁目地図を見る | ||
| 権利形態 | 所有権 | 私道負担 | - |
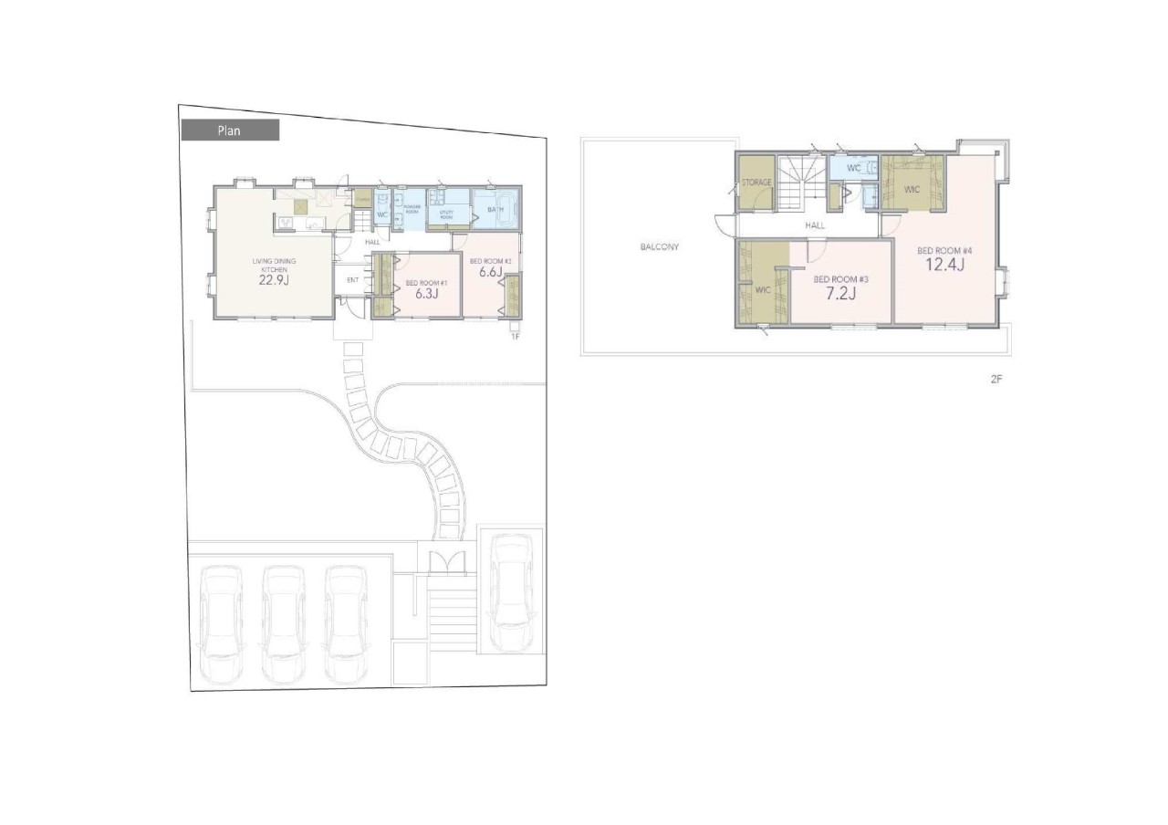
| 構造・階建て | 軽量鉄骨造・地上2階 | 間取り | 4LDK間取り・区画図を取り寄せる |
| 取引形態 | 媒介 | ||
| 備考 | - | ||
























