物件概要
| 種別 | 新築戸建て | 価格 | 7,580万円(税込) |
|---|---|---|---|
| 土地面積 | 165.21m² (49.97坪) | 建物面積 | 102.06m² (30.87坪) |
| 築年月 | 2026年05月 | 建築確認番号 | 第KAK建確01938号 |
| 現況 | 未完成 | 物件番号 | 1666363 |
| 交通 | 横浜グリーンライン「東山田」駅徒歩20分 横浜グリーンライン「北山田」駅徒歩22分 |
||
| 所在地 | 横浜市 都筑区東山田4丁目地図を見る | ||
| 権利形態 | 所有権 | 私道負担 | - |
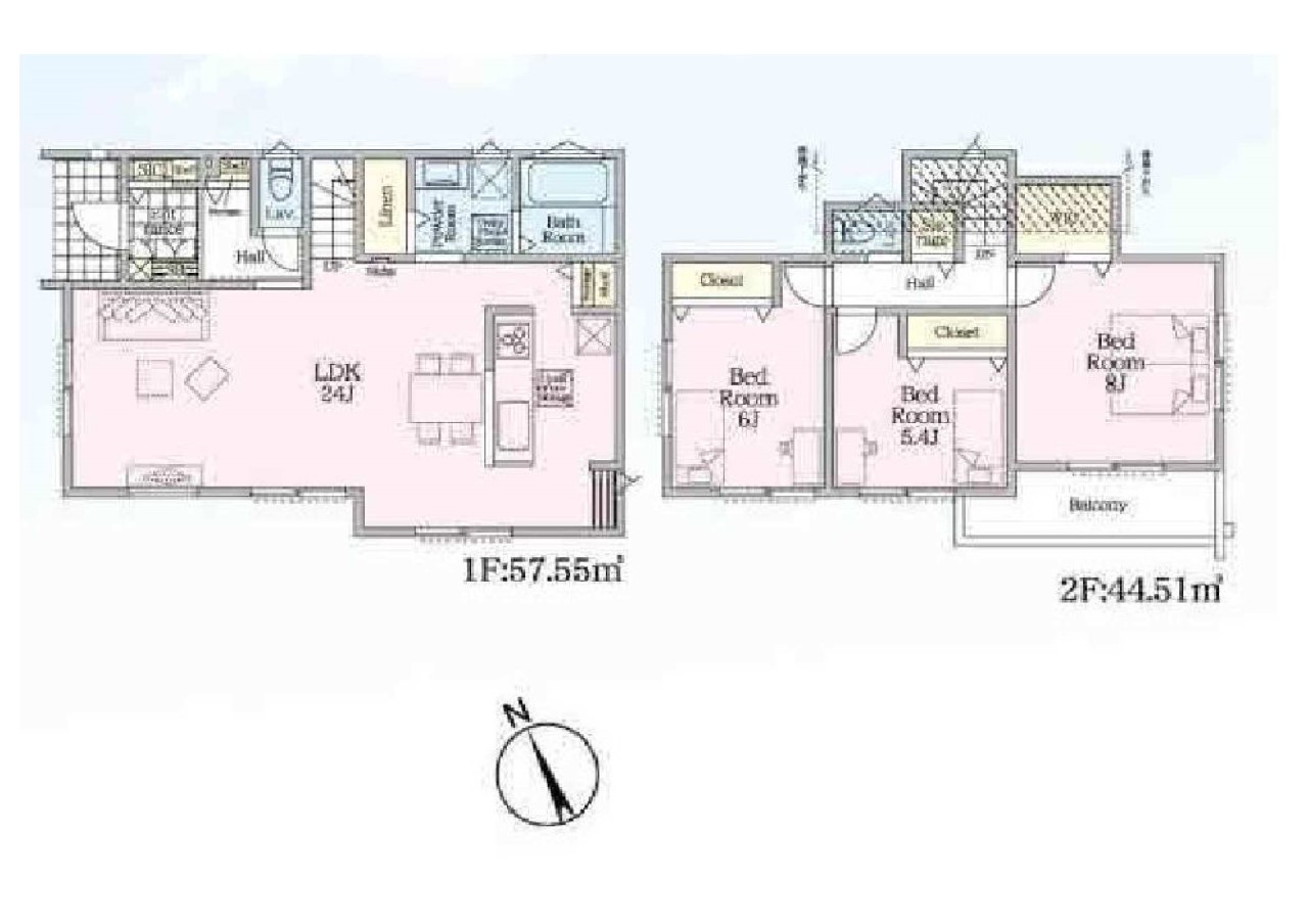
| 構造・階建て | 木造・地上2階 | 間取り | 3LDK間取り・区画図を取り寄せる |
| 取引形態 | 媒介 | ||
| 備考 | - | ||































