物件概要
| 種別 | 新築戸建て | 価格 | 6,380万円(税込) |
|---|---|---|---|
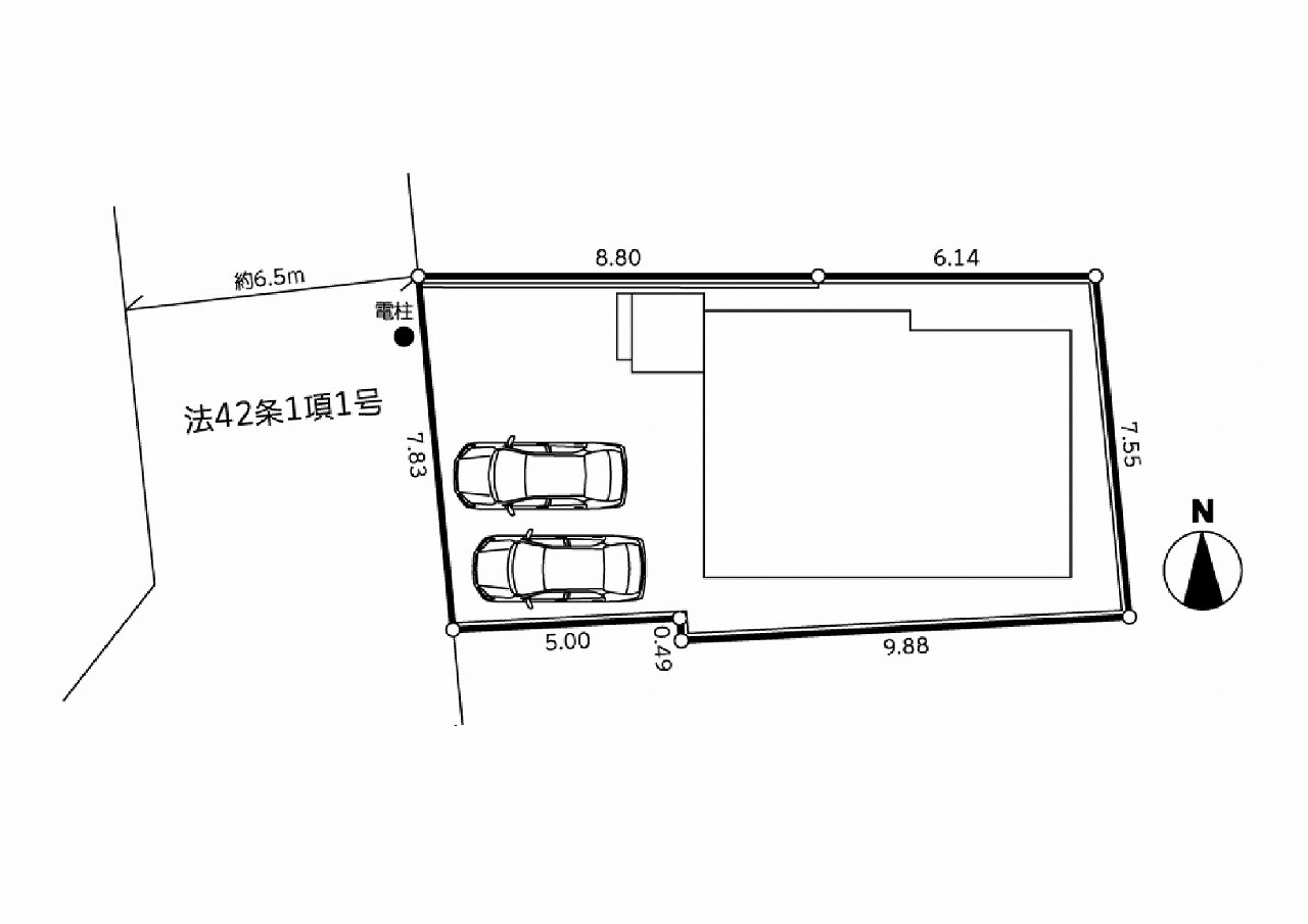
| 土地面積 | 115.53m² (34.94坪) | 建物面積 | 91.91m² (27.8坪) |
| 築年月 | 2026年10月 | 建築確認番号 | 第25UDI1K建02611号 |
| 現況 | 未完成 | 物件番号 | 1666415 |
| 交通 | 東急田園都市線「青葉台」駅バス6分「すすき野一丁目」停歩6分 横浜ブルーライン「あざみ野」駅徒歩35分 |
||
| 所在地 | 横浜市 青葉区もみの木台地図を見る | ||
| 権利形態 | 所有権 | 私道負担 | - |
| 構造・階建て | 木造・地上2階 | 間取り | 3LDK間取り・区画図を取り寄せる |
| 取引形態 | 媒介 | ||
| 備考 | - | ||




































