物件概要
| 種別 | 新築戸建て | 価格 | 4,980万円(税込) |
|---|---|---|---|
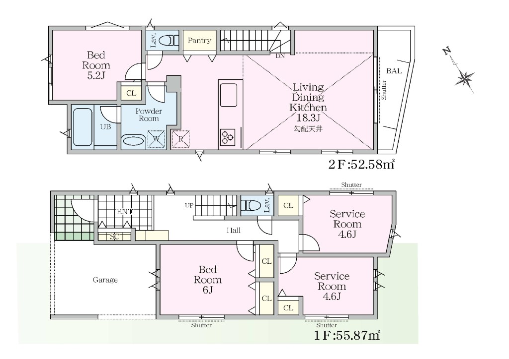
| 土地面積 | 82.15m² (24.85坪) | 建物面積 | 108.45m² (32.8坪) |
| 築年月 | 2026年03月 | 建築確認番号 | - |
| 現況 | 空家 | 物件番号 | 1664595 |
| 交通 | 横浜ブルーライン「蒔田」駅徒歩8分 横浜ブルーライン「弘明寺」駅徒歩14分 |
||
| 所在地 | 横浜市 南区大岡1丁目地図を見る | ||
| 権利形態 | 所有権 | 私道負担 | - |
| 構造・階建て | 木造・地上2階 | 間取り | 4LDK間取り・区画図を取り寄せる |
| 取引形態 | 媒介 | ||
| 備考 | - | ||




























