物件概要
| 種別 | 新築戸建て | 価格 | 4,680万円(税込) |
|---|---|---|---|
| 土地面積 | 98.78m² (29.88坪) | 建物面積 | 87.77m² (26.55坪) |
| 築年月 | 2026年02月 | 建築確認番号 | 第2025SBC-確01688H号 |
| 現況 | 空家 | 物件番号 | 1665235 |
| 交通 | JR根岸線「本郷台」駅徒歩18分 JR東海道線「大船」駅バス12分「朝日平和台入口」停歩6分 |
||
| 所在地 | 横浜市 栄区公田町地図を見る | ||
| 権利形態 | 所有権 | 私道負担 | - |
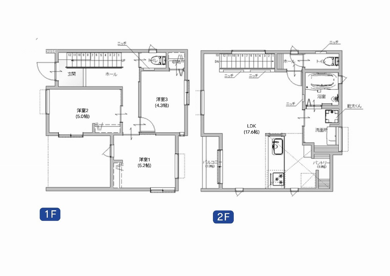
| 構造・階建て | 木造・地上2階 | 間取り | 3LDK間取り・区画図を取り寄せる |
| 取引形態 | 媒介 | ||
| 備考 | - | ||

































